Kitchen of the Week: English Cottage Style in Just 75 Square Feet
A charming kitchen and budget-friendly bath redo bring cottage style to a wee cabin in California’s Gold Country
In a world of 8,500-square-foot mansions, a house less than one-tenth that size might sound tiny. But in Nevada City, California, an 848-square-foot log cabin — and, especially, its 75-square-foot kitchen — are reminders that good design often comes in small packages.
After purchasing the two-bedroom, one-bathroom former rental, the homeowners rolled up their sleeves and tapped Jada Gilbert of Design Shop Interiors to help them create an inviting, personalized primary home. Gilbert focused on the kitchen, improving its flow and carving out storage and dining space. Then she laid on the English-cottage charm with custom cabinetry and details like Shaker pegs and cabinet vent holes. Scroll down to check out the results in the kitchen as well as in the home’s single bathroom, which got an inexpensive but charming makeover of its own.
After purchasing the two-bedroom, one-bathroom former rental, the homeowners rolled up their sleeves and tapped Jada Gilbert of Design Shop Interiors to help them create an inviting, personalized primary home. Gilbert focused on the kitchen, improving its flow and carving out storage and dining space. Then she laid on the English-cottage charm with custom cabinetry and details like Shaker pegs and cabinet vent holes. Scroll down to check out the results in the kitchen as well as in the home’s single bathroom, which got an inexpensive but charming makeover of its own.
After: This photo captures the kitchen area that underwent the most dramatic transformation, plus the adjoining entry and new built-in dining niche. (Scroll to the end to see the floor plan.)
The homeowners carefully extracted everything they could during the remodel so it could be reused. The old kitchen, for example, went to a woman who was building out a bus!
For inspiration on the new design, Gilbert looked to English cottage kitchens and incorporated their signature details, such as open shelving supported by shapely corbels, Shaker pegs and cabinet vent holes in the full-height cabinetry. She also installed a Carrara marble countertop and backsplash and unlacquered brass faucets and electrical plate covers that will develop a patina with age.
“They really like deVol and Schoolhouse Electric,” Gilbert says of the owners’ tastes. “It’s kind of a mix of all those really layered spaces, but it’s still pretty neutral.”
The custom-built cabinets are painted in Farrow & Ball’s Stony Ground, a light taupe that reads yellow or even green depending on the light.
Shop for kitchen storage and organization products
The homeowners carefully extracted everything they could during the remodel so it could be reused. The old kitchen, for example, went to a woman who was building out a bus!
For inspiration on the new design, Gilbert looked to English cottage kitchens and incorporated their signature details, such as open shelving supported by shapely corbels, Shaker pegs and cabinet vent holes in the full-height cabinetry. She also installed a Carrara marble countertop and backsplash and unlacquered brass faucets and electrical plate covers that will develop a patina with age.
“They really like deVol and Schoolhouse Electric,” Gilbert says of the owners’ tastes. “It’s kind of a mix of all those really layered spaces, but it’s still pretty neutral.”
The custom-built cabinets are painted in Farrow & Ball’s Stony Ground, a light taupe that reads yellow or even green depending on the light.
Shop for kitchen storage and organization products
The flooring change also had a dramatic lightening effect. Previously, there were several different flooring materials and colors in the house, including what Gibert thinks was laminate in the kitchen. To stick to the project’s budget but create a sense of consistency, they decided to paint all the floors white.
“The clients actually did it themselves, and they used a paint that’s meant for super high-traffic flooring surfaces,” Gilbert says. It was a painstaking multistep process, and Gilbert acknowledges that paint isn’t the most bombproof choice for a floor. But, as with the marble and brass, patina is part of the charm.
“Obviously a painted floor eventually is going to get little scratches and nicks,” Gilbert says. “But I think that’s kind of the beauty of aging in your own home and it becoming part of your family.”
50 Tiny Kitchens Full of Big Ideas
“The clients actually did it themselves, and they used a paint that’s meant for super high-traffic flooring surfaces,” Gilbert says. It was a painstaking multistep process, and Gilbert acknowledges that paint isn’t the most bombproof choice for a floor. But, as with the marble and brass, patina is part of the charm.
“Obviously a painted floor eventually is going to get little scratches and nicks,” Gilbert says. “But I think that’s kind of the beauty of aging in your own home and it becoming part of your family.”
50 Tiny Kitchens Full of Big Ideas
Note the new U-shaped layout, which swapped a window on the back wall for a 30-inch freestanding stainless steel range.
“Normally I would never cover up a window, but we moved the range to that back wall so that we could use the full [footprint ] of the kitchen,” Gilbert says. “That window didn’t have the best view and it was really the window above the sink that was bringing in the natural light that comes into the space.”
“Normally I would never cover up a window, but we moved the range to that back wall so that we could use the full [footprint ] of the kitchen,” Gilbert says. “That window didn’t have the best view and it was really the window above the sink that was bringing in the natural light that comes into the space.”
Need a pro for your home remodeling project?
Let Houzz find the best pros for you
Let Houzz find the best pros for you
A vintage-style ceramic-shade light fixture hangs above the deep farmhouse sink and brass bridge faucet. Beside the sink is a new panel-front dishwasher.
Recessed lights in the ceiling (airbrushed out of these photos) also illuminate the space.
20 Kitchens Straight Out of the English Countryside
Recessed lights in the ceiling (airbrushed out of these photos) also illuminate the space.
20 Kitchens Straight Out of the English Countryside
One detail that Gilbert felt was critical to the European cottage style and met the right proportions for the small space was the thin edge on the marble countertop, which you can see here. Its low profile turned out to be a tall order.
“It’s just a polished edge, which is not super standard on the West Coast. We ran into people not wanting to do just the marble straight on top of the cabinets with no plywood underneath, when normally you would have a 2-inch face or edge. We kind of had to push to get it to be a really thin, polished edge. But we got there!”
“It’s just a polished edge, which is not super standard on the West Coast. We ran into people not wanting to do just the marble straight on top of the cabinets with no plywood underneath, when normally you would have a 2-inch face or edge. We kind of had to push to get it to be a really thin, polished edge. But we got there!”
After: Moving the range to the back wall allowed Gilbert to install a floor-to-ceiling pantry to the left of the new stainless refrigerator and put an appliance garage to its right. Display-worthy accessories live on the shelves and pegs that flank the range backsplash and hood.
“Even if they’re not all being utilized, they’re kind of a fun moment,” Gilbert says of the pegs.
Zoom in to see the upper cabinet vent holes mentioned earlier.
“Even if they’re not all being utilized, they’re kind of a fun moment,” Gilbert says of the pegs.
Zoom in to see the upper cabinet vent holes mentioned earlier.
Another of Gilbert’s favorite details is the brass rod with hooks at the often-underused end of the sink-side cabinet. Around the corner is a narrow open shelf for cookbooks and cutting boards (just visible in the third photo).
Finding those opportunities to squeeze function into every square inch is one of the advantages of working with a designer and cabinetmaker, especially when space is limited.
Finding those opportunities to squeeze function into every square inch is one of the advantages of working with a designer and cabinetmaker, especially when space is limited.
Speaking of which, the home previously had no designated dining space. Gilbert solved that by building in a dining nook with a storage bench and a shelf with lighting above it. To its left is custom full-height cabinetry along the length of the wall, with a stacking washer and dryer behind the doors closest to the nook.
After: The owner found many of the bathroom’s charming decor items and some of the hardware, including the mirror. A new pedestal sink and a painted-wood wall treatment and shelf lend a vintage feel, and a fun green shower curtain adds personality. The rest is a testament to the power of paint.
“We actually left most of what was in there and then painted over it, [including] the shower tile and the floor, for budget reasons,” Gilbert says. (As with the floor paint, there’s special shower tile paint for this purpose.)
“We actually left most of what was in there and then painted over it, [including] the shower tile and the floor, for budget reasons,” Gilbert says. (As with the floor paint, there’s special shower tile paint for this purpose.)
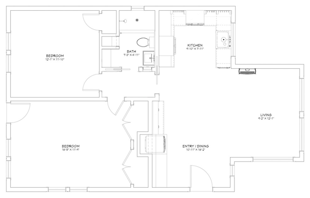
The home’s “after” floor plan.
The changes big and small add up to a little gem of a cottage in the heart of Gold Country.
“I would love to live here, and I think the clients are super happy about it as well,” Gilbert says.
More on Houzz
Read more kitchen stories
Browse kitchen photos
Hire a kitchen remodeler
Shop for kitchen products
The changes big and small add up to a little gem of a cottage in the heart of Gold Country.
“I would love to live here, and I think the clients are super happy about it as well,” Gilbert says.
More on Houzz
Read more kitchen stories
Browse kitchen photos
Hire a kitchen remodeler
Shop for kitchen products

















Kitchen at a Glance
Who lives here: A couple and the youngest two of their four children
Location: Nevada City, California
Size: About 75 square feet (7 square meters); 9 feet, 10 inches by 7 feet, 11 inches
Designer: Jada Gilbert of Design Shop Interiors
Before: Best known for its well-preserved Gold Rush history, Nevada City sits in the Northern California foothills of the Sierra Nevada mountains. The South Yuba river runs nearby, and this cabin backs up to one of its tributaries surrounded by forest.
The town is popular with tourists, and the cabin previously had been used as a short-term rental — and remodeled with that limited purpose in mind, designer Gilbert says. You can see the kitchen’s former galley shape, basic appliances and dark cabinetry and flooring in this photo.
But Gilbert’s clients planned to live in the cabin full time and homeschool two of their children there. One of their older kids lives nearby and the other likes to visit, so rethinking the inefficient layout was a must. Plus, the dark wood didn’t reflect the owners’ style.
Find kitchen remodelers near you