Kitchen of the Week: New Location for an Open Layout With Style
A designer transforms a dining room to create an airy kitchen with an island, natural light and white-and-wood style
In real estate, location is everything. That can also be true of a home’s interior spaces. This young California couple with two toddlers thought the location of their kitchen in a back corner of the home limited their connection to the surrounding living spaces. So they hired designer Natalia Avalos to help them search for a new location within the home that would give them the open-concept, family-friendly kitchen they dreamed of.
Avalos and the homeowners turned their attention to the centrally located dining room, which had more natural light and better connection to the living room and outdoor areas. Transforming the room into a new kitchen allowed Avalos to create an open layout with a large multipurpose island that adds storage, work surface and seating for four. White perimeter cabinets, white marble-look countertops and a slab backsplash create a bright look, while the walnut island base and white oak flooring add warmth.
Avalos and the homeowners turned their attention to the centrally located dining room, which had more natural light and better connection to the living room and outdoor areas. Transforming the room into a new kitchen allowed Avalos to create an open layout with a large multipurpose island that adds storage, work surface and seating for four. White perimeter cabinets, white marble-look countertops and a slab backsplash create a bright look, while the walnut island base and white oak flooring add warmth.
After: Avalos created the new kitchen in the former dining room while also absorbing a former pantry and a wine room to add 25 square feet to the layout. You can see the home’s front door to the right of the 42-inch stainless steel built-in fridge. Avalos also expanded the windows and vaulted the ceiling for an airier feel.
“They gained so much natural light by having the sink facing a wall full of windows overlooking the Japanese maple tree they love,” she says. “The light is also coming in from the living room. Gaining lots of natural light was a big thing for them.”
White perimeter cabinets, ceiling and trim (Chantilly Lace by Benjamin Moore) enhance the natural light. The walnut island base grounds the room in warmth. “They love walnut,” Avalos says. “They were tired of looking at white everywhere. I feel the walnut really elevates the space because it’s a wood rich in color and grain.” Seven-inch-wide white oak flooring and greige walls (Pale Oak by Benjamin Moore) also balance the room in warm tones. “They wanted the floors to have a natural feel,” Avalos says. “This floor has knots and natural color variation. It helps bring the outdoors in.”
Refrigerator: 42-inch built-in side-by-side in silver Stainless, Dacor
Find kitchen remodelers near you
“They gained so much natural light by having the sink facing a wall full of windows overlooking the Japanese maple tree they love,” she says. “The light is also coming in from the living room. Gaining lots of natural light was a big thing for them.”
White perimeter cabinets, ceiling and trim (Chantilly Lace by Benjamin Moore) enhance the natural light. The walnut island base grounds the room in warmth. “They love walnut,” Avalos says. “They were tired of looking at white everywhere. I feel the walnut really elevates the space because it’s a wood rich in color and grain.” Seven-inch-wide white oak flooring and greige walls (Pale Oak by Benjamin Moore) also balance the room in warm tones. “They wanted the floors to have a natural feel,” Avalos says. “This floor has knots and natural color variation. It helps bring the outdoors in.”
Refrigerator: 42-inch built-in side-by-side in silver Stainless, Dacor
Find kitchen remodelers near you
A pair of four-light metal pendants over the island have an hourglass silhouette with hand-wrapped bleached rope and a patinaed brass finish. “They’re definitely a statement,” Avalos says. “We wanted them to be a wow factor in the space. Their size is big, and they’re interesting to look at.”
Sconces on the sink wall illuminate the task area below. They have matte white steel shades and burnished brass-finished steel bodies. The kitchen also includes LED ceiling lights on dimmers, which were digitally removed from these photos by the photographer to help focus attention on other design elements.
Four counter stools at the island have white seats and solid wood frames with a rich walnut stain. Cabinets for seasonal items are located in the island behind the stools. To the right is a 48-inch pro-style gas range. “They love hosting and both cook,” Avalos says. “They wanted the range to feel grand.” A custom paneled 66-inch-wide range hood coordinates with the cabinetry and contains a powerful blower that keeps smoke and odors from drifting into surrounding spaces. Two pullouts that flank the range store spices and oils.
Pendant lights: Bianca, Capital Lighting Furniture; stove: gas pro range, 48 inches, Dacor; stools: Aubrey in Monaco White and wood finish walnut, Rove Concepts
Shop for bar and counter stools
Sconces on the sink wall illuminate the task area below. They have matte white steel shades and burnished brass-finished steel bodies. The kitchen also includes LED ceiling lights on dimmers, which were digitally removed from these photos by the photographer to help focus attention on other design elements.
Four counter stools at the island have white seats and solid wood frames with a rich walnut stain. Cabinets for seasonal items are located in the island behind the stools. To the right is a 48-inch pro-style gas range. “They love hosting and both cook,” Avalos says. “They wanted the range to feel grand.” A custom paneled 66-inch-wide range hood coordinates with the cabinetry and contains a powerful blower that keeps smoke and odors from drifting into surrounding spaces. Two pullouts that flank the range store spices and oils.
Pendant lights: Bianca, Capital Lighting Furniture; stove: gas pro range, 48 inches, Dacor; stools: Aubrey in Monaco White and wood finish walnut, Rove Concepts
Shop for bar and counter stools
The kitchen’s main white farmhouse sink is paired with a modern satin gold pull-down faucet. A pair of stainless steel dishwashers flank the sink. “For them it was a must,” Avalos says. The three operable windows can bring fresh air inside, and they overlook the previously mentioned Japanese maple. “The windows are flush with the countertops,” Avalos says. “We did this to gain about 6 inches of countertop depth.”
An undermount white prep sink is located in the island near the range and has a smaller version of the satin gold pull-down faucet at the main sink. A beverage and wine refrigerator is in the island end in the foreground. “They also have a new wine cellar underneath the stairs,” Avalos says.
The countertops and slab backsplash are Calacatta Romano marble-look quartz in a polished finish. “We wanted it to feel clean and not busy,” Avalos says. “And, most important to them, they didn’t want to have to clean grout lines.”
Beverage refrigerator: Zephyr; sinks: Alfi Trade
9 Kitchen Remodeling Trends Everyone Should Know About Now
An undermount white prep sink is located in the island near the range and has a smaller version of the satin gold pull-down faucet at the main sink. A beverage and wine refrigerator is in the island end in the foreground. “They also have a new wine cellar underneath the stairs,” Avalos says.
The countertops and slab backsplash are Calacatta Romano marble-look quartz in a polished finish. “We wanted it to feel clean and not busy,” Avalos says. “And, most important to them, they didn’t want to have to clean grout lines.”
Beverage refrigerator: Zephyr; sinks: Alfi Trade
9 Kitchen Remodeling Trends Everyone Should Know About Now
The view in the opposite direction shows the open doorway that connects the kitchen to the foyer and front door of the home. The dining room was relocated to a space beyond the foyer and stairs. “We wanted to preserve some kind of opening but we wanted to reduce the size to make it the best location for the main refrigerator,” Avalos says.
The interior side of the island has a combination of cabinets and drawers, including a slim cabinet with dividers for cookie sheets and baking pans. Solid round knurled cabinet knobs and 6-inch pulls in a satin gold finish coordinate with the faucets. “I personally like the combination of knobs and pulls so the kitchen doesn’t look too rigid,” Avalos says. “I like to be a bit more playful.”
A patterned polyester vintage-style rug between the island and sink area has a relaxed feel with warm, distressed shades of deep charcoal and olive green.
Cabinetry hardware: GlideRite Hardware; rug: Layla in olive and charcoal, Loloi
The interior side of the island has a combination of cabinets and drawers, including a slim cabinet with dividers for cookie sheets and baking pans. Solid round knurled cabinet knobs and 6-inch pulls in a satin gold finish coordinate with the faucets. “I personally like the combination of knobs and pulls so the kitchen doesn’t look too rigid,” Avalos says. “I like to be a bit more playful.”
A patterned polyester vintage-style rug between the island and sink area has a relaxed feel with warm, distressed shades of deep charcoal and olive green.
Cabinetry hardware: GlideRite Hardware; rug: Layla in olive and charcoal, Loloi
A paneled trash and recycling pullout sits to the left of this dishwasher. The cabinet with double doors to the upper left of the sink has four adjustable shelves for everyday dishes and glassware. “We did an identical cabinet like that on the other side of the sink for symmetry,” Avalos says.
Sconces: Joan, Visual Comfort Studio Collection
28 Home Design Trends That Will Define 2024
Sconces: Joan, Visual Comfort Studio Collection
28 Home Design Trends That Will Define 2024
A pocket door connects the kitchen to a new 55-square-foot walk-in pantry that was once the laundry room, which Avalos relocated. The laundry room now can be accessed through the pantry and a new playroom. The pantry includes an integrated microwave behind cabinet doors.
New to home remodeling? Learn the basics
New to home remodeling? Learn the basics
In addition to the concealed microwave, the pantry has floor-to-ceiling cabinetry with rollouts for dry goods and windows for natural light. Avalos says the tall pantry cabinets can also work as an appliance garage to keep the main kitchen counters free from clutter. “We have counter space there where they can pull out appliances,” she says.
A 16-foot-wide opening connects the kitchen to the living room, which features a sectional sofa, a large swivel chair, a tufted leather ottoman and a hand-knotted wool area rug. A new eating nook sits in a corner off the kitchen (back right). “We have two NanaWall systems there, so pretty much all that corner is glass,” Avalos says. “It creates a better indoor-outdoor flow.”
Sofa: York, Room & Board; ottoman: Timpani, Article
Sofa: York, Room & Board; ottoman: Timpani, Article
Before: This floor plan shows the former layout with the kitchen (top left) confined to a back corner of the home, closed off from surrounding spaces. The former dining room (top center) presented a good opportunity to create an airier kitchen thanks to its openness to the living room (above the dining room, not shown). A former laundry room (middle bottom), pantry (middle left) and wine area (middle top) offered space to expand. The home’s front entry and foyer are toward the middle right. “They wanted to feel they were walking into a nice space when they were coming home,” Avalos says.
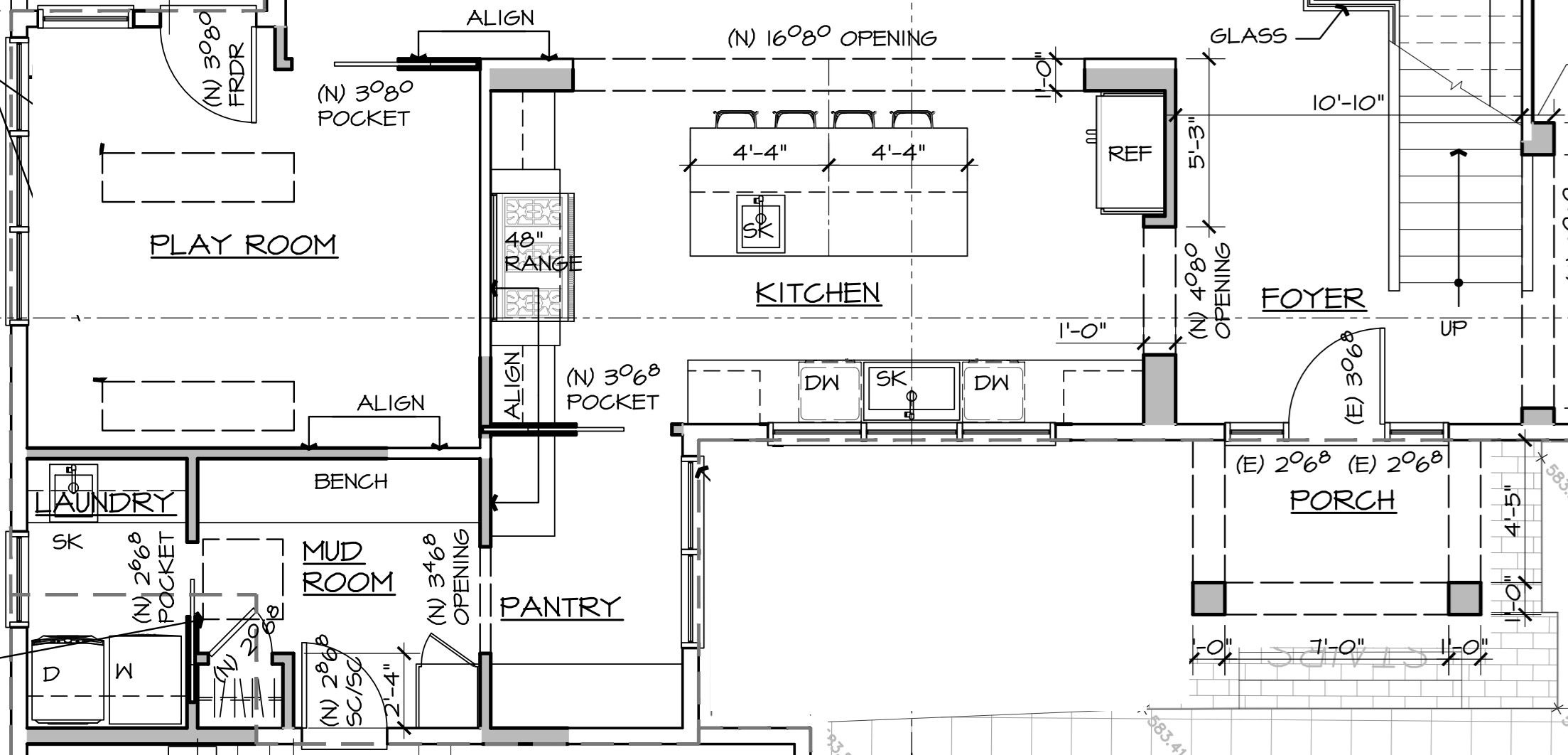
After: The new kitchen occupies the former dining room, wine area and part of the former pantry. A U-shaped layout wraps around a large central island. The layout opens at the top to the living room. The former kitchen became a playroom (top left) and the former laundry room became the new walk-in pantry (bottom center). A new laundry room and mudroom are accessed through the pantry and playroom. “Having a functional space they can share with their family and friends while allowing lots of natural light inside and gaining so much storage is what makes this kitchen special,” Avalos says.
More on Houzz
Read more kitchen stories
Browse kitchen photos
Hire a kitchen remodeler
Shop for kitchen products
More on Houzz
Read more kitchen stories
Browse kitchen photos
Hire a kitchen remodeler
Shop for kitchen products















Kitchen at a Glance
Who lives here: A young couple with two toddlers
Location: Orinda, California
Size: 250 square feet (23 square meters)
Designer: Natalia Avalos Interiors
Before: The former 225-square-foot kitchen sat in a confined back corner of the home. (See the “before” floor plan below.) “The kitchen felt secluded in the corner,” Avalos says. “They felt when they were in the kitchen, they didn’t know what else was going on in the home.”
In addition to the kitchen’s location, the couple disliked its low-hung cabinets, which appeared yellow in the artificial lighting, as well as the basic granite countertops and two-tier island with a raised bar portion that sat only two people. “They wanted an ample-looking island,” Avalos says. “They didn’t even really use that bar section.”