Kitchen of the Week: Vintage Style With Serious Baking Features
A designer and a contractor update a galley kitchen with dramatic cabinets, marble finishes and clever storage units
Carrie Ann Terrell and Jody Bjornstad didn’t feel their 1970s add-on kitchen with its dated finishes and fluorescent lighting complemented the beautiful wood details and high ceilings in the rest of their 1886 Victorian home. “There was this vinyl kitchen tacked on to the back,” Terrell says. Meanwhile, poorly done construction had left a dangerous slope in the floor that the couple tried to mitigate with a rug.
After five years, they’d had enough. They turned to designer Kelly Vickers and general contractor Mike Strafelda for help creating a functional modern-day kitchen in a style that better fit the era of their home. Strafelda fixed the sloped floor, and Vickers created an updated traditional look with black-stained Shaker-style cabinets, marble countertops and marble tile flooring, brass details and a burgundy range. There are also fun details like a baking hutch with an integrated flour sifter, and a mini mudroom storage area with a hidden cat door that leads to a basement litter box.
After five years, they’d had enough. They turned to designer Kelly Vickers and general contractor Mike Strafelda for help creating a functional modern-day kitchen in a style that better fit the era of their home. Strafelda fixed the sloped floor, and Vickers created an updated traditional look with black-stained Shaker-style cabinets, marble countertops and marble tile flooring, brass details and a burgundy range. There are also fun details like a baking hutch with an integrated flour sifter, and a mini mudroom storage area with a hidden cat door that leads to a basement litter box.
After: Strafelda knocked the kitchen back to the studs and added new floor joists to address the slope.
Queen Beige tumbled marble floor tiles in a Versailles pattern give the space a warm, elegant anchor. “The feeling of the floor was inspired by my favorite room in the Minneapolis Institute of Art,” Terrell says. “It gives us a timeless and neutral base to support the other design elements.”
Dramatic black-stained ash Shaker-style cabinets with two types of brass pulls bring a regal and glamorous style. White walls and ceiling (White Dove by Benjamin Moore) and simple white ceramic subway tile on the range wall create a light and airy look, while the original stained oak trim adds warmth.
Find kitchen remodelers near you
Queen Beige tumbled marble floor tiles in a Versailles pattern give the space a warm, elegant anchor. “The feeling of the floor was inspired by my favorite room in the Minneapolis Institute of Art,” Terrell says. “It gives us a timeless and neutral base to support the other design elements.”
Dramatic black-stained ash Shaker-style cabinets with two types of brass pulls bring a regal and glamorous style. White walls and ceiling (White Dove by Benjamin Moore) and simple white ceramic subway tile on the range wall create a light and airy look, while the original stained oak trim adds warmth.
Find kitchen remodelers near you
Terrell and Bjornstad decided to keep the existing appliance and plumbing layout mostly unchanged. (They moved the fridge down a few feet on the opposite wall.) A 36-inch Italian dual-fuel range in a rich burgundy color adds a touch of drama. “Jody is an avid baker, so the oven choice was very important to her,” Vickers says. “We looked at a bunch of high-end ranges, and this is the one we ended on. It had all the features she wanted, and the burgundy with the brass made a statement.”
A 30-by-36-inch curved black wood hood features a wide band of brass trim that also makes a statement and complements other brass details in the room.
A vintage wood baking table sits in the bay window below a caged ceiling light and gives Jody a spot to roll out and proof dough, as well as comfortably use her stand mixer.
Backsplash: Chester ceramic wall tile in Matte Bianco, Merola Tile; range: ILVE USA; hood: Curved in black, Hoodsly
Shop for kitchen and dining products
A 30-by-36-inch curved black wood hood features a wide band of brass trim that also makes a statement and complements other brass details in the room.
A vintage wood baking table sits in the bay window below a caged ceiling light and gives Jody a spot to roll out and proof dough, as well as comfortably use her stand mixer.
Backsplash: Chester ceramic wall tile in Matte Bianco, Merola Tile; range: ILVE USA; hood: Curved in black, Hoodsly
Shop for kitchen and dining products
A 32-inch pro-style double-bowl stainless steel sink sits below a window. “Because we still prefer to wash some of our special glassware by hand, having two basins is helpful,” Terrell says.
A widespread solid brass faucet features a classic style in an antique brass finish. A paneled pullout to the lower left of the sink holds baking sheets. A paneled dishwasher sits to the left of the pullout.
The countertop is honed Calacatta Lincoln marble with a traditional-style ogee edge. “One of the first selections we made was the Lincoln marble,” Vickers says. “It’s stunning. The ogee edge gives it that regal, more traditional Victorian feel. It’s also great for a baker’s kitchen.”
A vintage pendant light with cone-shaped glass shade provides light over the sink area. The kitchen also has new LED recessed ceiling lights.
The quirky towel rack mounted on the wall to the upper right of the sink was a vintage find by the homeowners.
Sink: Strive, Kohler; faucet: Twisthaus in antique brass, Whitehaus Collection
10 Kitchen Trends to Watch in Layouts, Features and More
A widespread solid brass faucet features a classic style in an antique brass finish. A paneled pullout to the lower left of the sink holds baking sheets. A paneled dishwasher sits to the left of the pullout.
The countertop is honed Calacatta Lincoln marble with a traditional-style ogee edge. “One of the first selections we made was the Lincoln marble,” Vickers says. “It’s stunning. The ogee edge gives it that regal, more traditional Victorian feel. It’s also great for a baker’s kitchen.”
A vintage pendant light with cone-shaped glass shade provides light over the sink area. The kitchen also has new LED recessed ceiling lights.
The quirky towel rack mounted on the wall to the upper right of the sink was a vintage find by the homeowners.
Sink: Strive, Kohler; faucet: Twisthaus in antique brass, Whitehaus Collection
10 Kitchen Trends to Watch in Layouts, Features and More
Before: This view of the former kitchen shows a niche at the end with a console table that the couple didn’t feel adequately used the space.
After: A new built-in hutch designed to look like a stand-alone cabinet now sits in the niche. It has an electrical outlet inside and holds a microwave and toaster. “There are other ways to conceal small appliances, but this was the simplest for us and a way to create the furniture look we really wanted,” Terrell says.
A vintage chair sits below a framed oil painting by a local artist.
New to home remodeling? Learn the basics
A vintage chair sits below a framed oil painting by a local artist.
New to home remodeling? Learn the basics
The new baker’s hutch was inspired by a classic Hoosier cabinet, a freestanding kitchen cabinet manufactured by Indiana cabinetmakers in the early 20th century. “It was truly Jody’s baby,” Vickers says. “We wanted to incorporate her love of baking into this kitchen. We worked hard on this, and Jody actually created a 3D model of it in cardboard.”
A new black stainless steel French door refrigerator stands to the right of the baking center.
Must-Know Furniture: The Hoosier Cabinet
A new black stainless steel French door refrigerator stands to the right of the baking center.
Must-Know Furniture: The Hoosier Cabinet
The hutch features a walnut butcher block countertop and a backsplash made from a framed painting by a local artist that depicts birds in trees.
Painting: Megan Moore
Painting: Megan Moore
The hutch also includes a vintage-style built-in flour sifter. “The part that holds the flour is built into the cabinet, and it slides out to be filled,” Terrell says. “The sifter is located below the cabinet so it can be used on demand.”
An open cabinet to the left of the hutch forms a mini mudroom near a door that leads to the backyard. “It gives them a drop zone,” Vickers says. “It includes a charging station for their phones too.”
The cabinet also has a clever integrated cat door to a basement litter box for the couple’s two cats. Mischa is seen here exiting the door. “This way they never have to leave their basement door open for their kitties to get to their litter box,” Vickers says.
Before: This photo taken from the formal dining room shows a former coffee nook off the kitchen that had turned into a catchall for cookbooks and other items. “It made it difficult to navigate to the door to the dining room, particularly when entertaining,” Terrell says. “It would get clogged up in that corner.”
This photo also shows some of the wood details in the home that the couple loved and wanted to keep.
This photo also shows some of the wood details in the home that the couple loved and wanted to keep.
After: The couple replaced the nook with a glamorous dry bar that now sits just around the corner from the fridge. The area includes the same black-stained cabinets and marble countertop as the kitchen, as well as brass shelves. “The layout makes the traffic flow much better,” Terrell says. “It’s also a visually stunning entrance into the kitchen.”
Glass for mirror: GlassArt Design
Glass for mirror: GlassArt Design
A champagne pink hand-painted silk wall mural to the right of the bar depicts a tranquil nature scene and brings a touch of high design to the space. “That mural wraps around the wall to the end of the hallway,” Vickers says. “It’s 18 feet long and elevates the space to match the era of this home.”
The paneled wood door on the right connects the kitchen and bar to the dining room.
Wall mural: De Gournay
The paneled wood door on the right connects the kitchen and bar to the dining room.
Wall mural: De Gournay
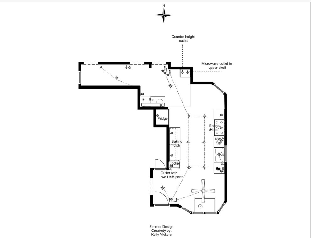
This floor plan shows the layout of the updated galley kitchen (center right), with the bay window on one end (bottom) and the new dry bar (center top) at the other. “These two people are very good stewards of this home,” Vickers says. “They wanted to protect the integrity of the house. This kitchen has a wow factor but feels like it has always been there.”
More on Houzz
Read more kitchen stories
Browse kitchen photos
Hire a kitchen remodeler
Shop for kitchen products
More on Houzz
Read more kitchen stories
Browse kitchen photos
Hire a kitchen remodeler
Shop for kitchen products


















Kitchen at a Glance
Who lives here: Carrie Ann Terrell and Jody Bjornstad and their cats, Mischa and Amos
Location: St. Paul, Minnesota
Size: 330 square feet (31 square meters)
Designer: Kelly Vickers of Zimmer Design
Builder: Mike Strafelda of Collective Carpentry
Before: The former kitchen was part of an addition to the home made in the 1970s. It featured a bland beige-and-brown look with worn cabinets, fluorescent lighting and a sloped floor covered in mismatched sheet vinyl. “The issues for me were primarily aesthetic, but there was the problem with the add-on and the floor that made it significantly uneven,” Terrell says.