Kitchen of the Week: Baker’s Dream Kitchen With Two Islands
A kitchen-family room makeover adds happy' aqua cabinetry and a dedicated baking space to a Massachusetts farmhouse
A Massachusetts couple, one of whom is an avid baker, reached out to designer Jodi Swartz to discuss expanding the kitchen of their Colonial-style farmhouse. Their goal was to create more room to cook, bake and entertain, which they thought would require an addition. But Swartz, the founder and principal of KitchenVisions, could see that the home already had all the square footage they needed — the floor plan just needed some strategic rejiggering. Below, see how Swartz turned their disjointed open-concept space into a free-flowing family room, kitchen and baking room with its own island, all without adding to the home’s footprint.
Before: The key to Swartz’s plan was this underused sunroom-playroom, which occupied the area at the far left in the previous photo. The 198-square-foot room was separated from the kitchen by a framed opening flanked by shallow cabinets, and it had a stepped-down brick floor.
New to home remodeling? Learn the basics
New to home remodeling? Learn the basics
After: Swartz transformed the sunroom into this baking room, which was at the top of the homeowners’ wish list. The wife bakes bread every day, plus desserts like cookies and brownies, Swartz says — and what her family of four doesn’t eat, she gives away. “The guys who were putting together this kitchen were just delighted!” Swartz says.
By widening the opening, raising the floor and matching the pine floors, Swartz made the room feel like it had always been integral to the kitchen. A high shed ceiling with hemlock beams made it feel much larger and more open.
Removing a window on the right created more room for two tall pantry cabinets, reclaimed-wood floating shelves, a full-size sink and paneled undercounter Sub-Zero refrigerator. Everything the homeowner needs for baking is in the two pantries or in the island cabinetry. To compensate for losing the window, Swartz enlarged the window on the back wall and moved a slider door from the family room to the wall just outside the photo frame on the left. That also expanded the view of the yard and barn, which houses chickens that produce fresh eggs daily.
At the center of it all is a 30-inch-tall baking island designed for kneading dough ergonomically. That’s also standard table height, so the island doubles as a casual dining area. For seating, the wife repurposed four rolling chairs that had been passed down through her family, reupholstering them in a funky pink zebra print.
By widening the opening, raising the floor and matching the pine floors, Swartz made the room feel like it had always been integral to the kitchen. A high shed ceiling with hemlock beams made it feel much larger and more open.
Removing a window on the right created more room for two tall pantry cabinets, reclaimed-wood floating shelves, a full-size sink and paneled undercounter Sub-Zero refrigerator. Everything the homeowner needs for baking is in the two pantries or in the island cabinetry. To compensate for losing the window, Swartz enlarged the window on the back wall and moved a slider door from the family room to the wall just outside the photo frame on the left. That also expanded the view of the yard and barn, which houses chickens that produce fresh eggs daily.
At the center of it all is a 30-inch-tall baking island designed for kneading dough ergonomically. That’s also standard table height, so the island doubles as a casual dining area. For seating, the wife repurposed four rolling chairs that had been passed down through her family, reupholstering them in a funky pink zebra print.
The perimeter and island countertops are marble-like, 3-centimeter-thick polished quartz with an eased edge. “I asked her if she wanted marble,” Swartz says. “I kept saying, ‘Are you sure you don’t want it to be cold for rolling out dough?’ But marble etches [and] stains. She just wanted it to be no-fuss, and she said, ‘No, I’ll make the dough cold enough.’ ”
The white counter coordinates with the handcrafted backsplash tile — a bit of a splurge, Swartz says. Its geometric, tumbling-block pattern adds a subtle modern touch.
The homeowners chose this “happy” robin’s-egg-like aqua from Benjamin Moore’s Historical collection for the custom maple cabinetry, Swartz says, and it set the color scheme for the room. To help arrive at the fresh farmhouse-style aesthetic, they shared their design ideas with Swartz using ideabooks on Houzz.
Paint colors: Williamsburg Wythe Blue (cabinets) and Simply White (walls), Benjamin Moore; quartz countertop: Karis, Viatera; matte black square bar pulls: Top Knobs; tile: Escher in Calcite, Fireclay Tile
The white counter coordinates with the handcrafted backsplash tile — a bit of a splurge, Swartz says. Its geometric, tumbling-block pattern adds a subtle modern touch.
The homeowners chose this “happy” robin’s-egg-like aqua from Benjamin Moore’s Historical collection for the custom maple cabinetry, Swartz says, and it set the color scheme for the room. To help arrive at the fresh farmhouse-style aesthetic, they shared their design ideas with Swartz using ideabooks on Houzz.
Paint colors: Williamsburg Wythe Blue (cabinets) and Simply White (walls), Benjamin Moore; quartz countertop: Karis, Viatera; matte black square bar pulls: Top Knobs; tile: Escher in Calcite, Fireclay Tile
After enlarging the framed opening between the kitchen and former sunroom (which was about where the clients’ dog Tahoe is lying in this photo), Swartz slid the original dining room entry (which was about where the built-in Thermador steam and convection ovens are now) a few feet to the left. Doing so enabled her to square off a second, counter-height island in the kitchen and the run of cabinetry behind it, and expand both by 3 feet. An opening to the home’s entry area is on the right. Scroll to the “before” and “after” floor plans at the bottom of the story to compare.
Swartz created a cavity in that central wall to run plumbing for the steam oven. That also allowed her to recess a full-depth refrigerator into the wall.
Shop for kitchen island seating
Swartz created a cavity in that central wall to run plumbing for the steam oven. That also allowed her to recess a full-depth refrigerator into the wall.
Shop for kitchen island seating
Before: Swartz moved the window that used to be behind the sink, pictured here, to the family room. It fills the space left by the slider doors, which are now in the baking room.
Since the homeowners love to cook and often entertain — in fact, she’s an event designer by profession — Swartz also used some of the old cabinetry and appliances to create another small kitchen downstairs. Plus, “I don’t like everything going to the landfill,” Swartz says.
Since the homeowners love to cook and often entertain — in fact, she’s an event designer by profession — Swartz also used some of the old cabinetry and appliances to create another small kitchen downstairs. Plus, “I don’t like everything going to the landfill,” Swartz says.
After: The new, much larger window extends all the way down to the countertop, and the countertop and cabinetry now extend nearly into the family room, which greatly increased the kitchen’s storage capacity (another item on the homeowners’ wish list).
The homeowner found the three inexpensive pendant lights that hang over the apron-front sink. The room also has undercabinet lighting and discreetly placed recessed lights throughout.
Shop for kitchen and cabinet lighting on Houzz
The homeowner found the three inexpensive pendant lights that hang over the apron-front sink. The room also has undercabinet lighting and discreetly placed recessed lights throughout.
Shop for kitchen and cabinet lighting on Houzz
The run of cabinets ends with this cabinet, which has a backless upper that allows the geometric backsplash tile to show through. “It’s the frosting on the cake,” Swartz says.
There was one minor “uh-oh” during the renovation. At one point, they noticed that the paint on the cabinetry seemed to have come from different batches. Ovation Cabinetry made over every door, Swartz says.
9 Kitchen Remodeling Trends Everyone Should Know About Now
There was one minor “uh-oh” during the renovation. At one point, they noticed that the paint on the cabinetry seemed to have come from different batches. Ovation Cabinetry made over every door, Swartz says.
9 Kitchen Remodeling Trends Everyone Should Know About Now
Before: This photo of the previous, smaller kitchen island also offers a glimpse of what the rest of the room once looked like. Notice the low beamed ceilings, the aforementioned slider doors and the framed opening to the sunroom. Also note the mixer and flour on the counter and cookies cooling on the rack.
After: As in the former sunroom, vaulting the ceiling in the kitchen and family room was a splurge that completely transformed the space. Decorative hemlock truss beams accentuate the gable ceiling’s height, which is about 13½ feet at its peak, while adding to the farmhouse feel. The island, meanwhile, has a more contemporary look thanks to two notched corners that also ease the path of travel between the kitchen and family room.
An innovative Thermador induction cooktop sits almost flush with the island countertop and offers 36 inches of usable cooking surface. The homeowners had a pro-style kitchen with gas in their previous home, but after using her best friend’s induction cooktop, the wife was converted to the efficient, flameless technology. Among its many advantages is that its shallow depth allows for a functional drawer just below it.
The other drawers and cabinets on the back side of the island include designated storage spaces for small appliances, pots and even for onions and potatoes. “Every cabinet in the kitchen has overloaded pullout drawers inside, including plate storage pegs,” Swartz says.
12 Trends in Kitchen Appliances for 2024
An innovative Thermador induction cooktop sits almost flush with the island countertop and offers 36 inches of usable cooking surface. The homeowners had a pro-style kitchen with gas in their previous home, but after using her best friend’s induction cooktop, the wife was converted to the efficient, flameless technology. Among its many advantages is that its shallow depth allows for a functional drawer just below it.
The other drawers and cabinets on the back side of the island include designated storage spaces for small appliances, pots and even for onions and potatoes. “Every cabinet in the kitchen has overloaded pullout drawers inside, including plate storage pegs,” Swartz says.
12 Trends in Kitchen Appliances for 2024
Before: A red brick wood-burning fireplace contributed to the original family room’s dark and heavy look. The rickety closet to its right was “hideous” and had to go, Swartz says.
After: Swartz painted the fireplace white to better integrate it into the mostly white room, then added a mantel of reclaimed white oak and custom maple built-ins on either side. The white oak shelves on the right are filled with the wife’s cookbooks, which she organizes by color.
Moving the sliding glass door into the baking room and replacing it with the old kitchen window allowed for extra seating, and thus better TV viewing, along that wall. The homeowner selected the leather couch and the rest of the decor.
Built-ins (painted in Luminous White): Ovation Cabinetry
Moving the sliding glass door into the baking room and replacing it with the old kitchen window allowed for extra seating, and thus better TV viewing, along that wall. The homeowner selected the leather couch and the rest of the decor.
Built-ins (painted in Luminous White): Ovation Cabinetry
The small built-in desk on the left serves as an extra workspace or homework nook for the kids.
The project has won a Professional Remodeling Organization, or PRO, New England Award as well as a Builders and Remodelers Association of Greater Boston PRISM Award. And perhaps more importantly, Swartz says the homeowners (whom she sees all the time) are delighted with the outcome.
The project has won a Professional Remodeling Organization, or PRO, New England Award as well as a Builders and Remodelers Association of Greater Boston PRISM Award. And perhaps more importantly, Swartz says the homeowners (whom she sees all the time) are delighted with the outcome.
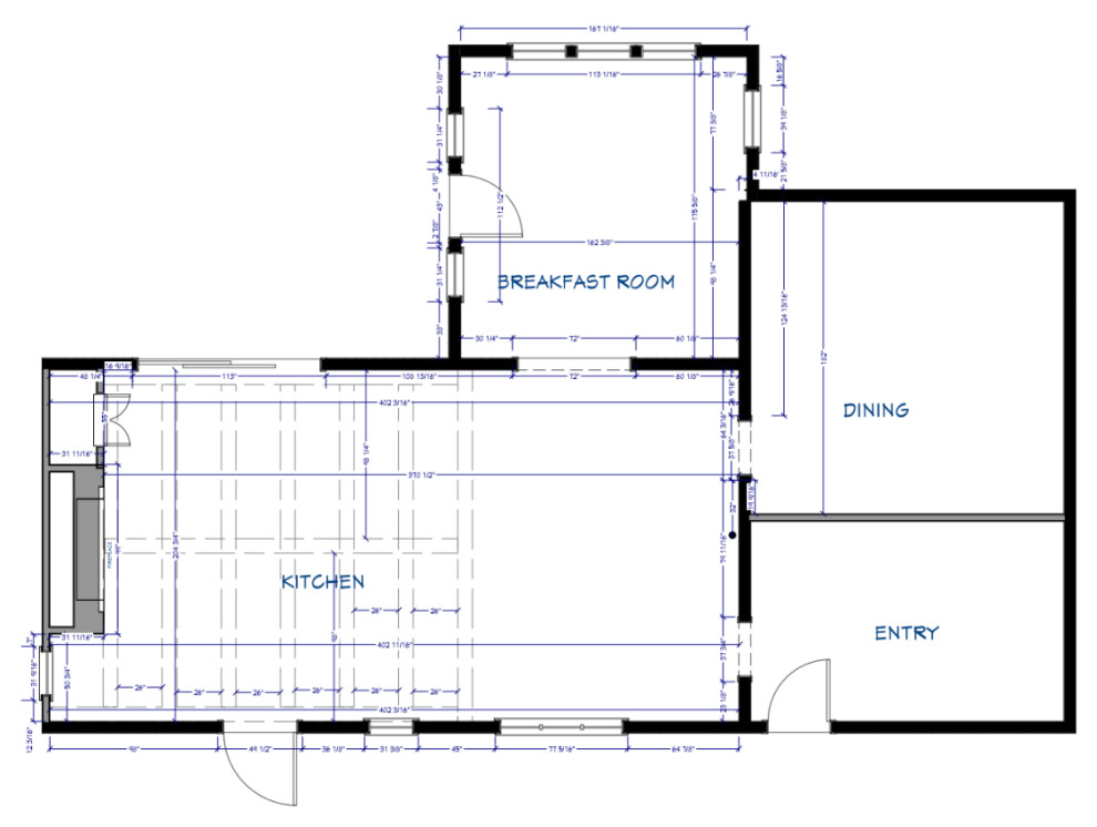
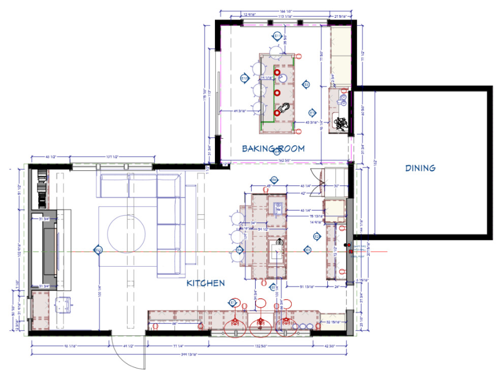
The “after” floor plan. (The entry is still there. It wasn’t part of the renovation so it wasn’t included in this plan.)
More on Houzz
Read more kitchen stories
Browse kitchen photos
Hire a kitchen remodeler
Shop for kitchen products
More on Houzz
Read more kitchen stories
Browse kitchen photos
Hire a kitchen remodeler
Shop for kitchen products

















Kitchen at a Glance
Who lives here: A couple, their two young teens and several pets
Location: Wayland, Massachusetts
Size: Combined kitchen, baking area and family room: 757 square feet (70 square meters); kitchen and baking area only: 398 square feet (37 square meters)
Designers: Jodi Swartz of KitchenVisions (lead design) and
Marissa Spain of Collaborative Concepts (technical design)
Contractor: Andrew Stone of Preferred Builders
The house is the centerpiece of a 9-acre hobby farm west of Boston. It was built in the 1980s, but it looks like it could be 300 years older thanks to its Colonial-style architecture and wide-plank pine floors, brick fireplaces and beamed ceilings.
The couple had lived in it for more than two years before they hired Swartz, a family friend. By then, they’d come up with the idea of expanding their kitchen into the original family room in order to create separate cooking and baking zones, then adding a new family room alongside it.
Swartz says that persuading them she could achieve all they wanted by reconfiguring the existing layout didn’t take long — especially after they discussed the costs and disruption associated with designing and building an addition.
This photo shows the new spacious kitchen and baking areas. Keep scrolling for a closer look and to see the redesigned family room.
Find kitchen remodelers near you