Kitchen of the Week: Warm and Inviting Style With an Open Layout
A designer helps a couple create a breezy floor plan and add style with sleek cabinets and welcoming wood details
With two teenage daughters set to leave home, this couple decided to embrace their upcoming empty-nest status by tackling a kitchen renovation they’d wanted to do for years. They had already updated other areas of their 1957 rambler-style house in Edina, Minnesota, but had put off addressing their boxy, closed-off kitchen and its laminate cabinets and countertops and lack of storage.
For help, they turned to builder Brent Darr and designer Kelly Vickers. The remodeling team took down walls to open the kitchen to the nearby dining room and living room. They created a new layout with an efficient work triangle and more cabinets. And they gave the space a warm and inviting style with glossy gray flat-panel cabinets, a walnut butcher block island and a white-and-gray painted stencil backsplash feature that mimics the look of tile.
For help, they turned to builder Brent Darr and designer Kelly Vickers. The remodeling team took down walls to open the kitchen to the nearby dining room and living room. They created a new layout with an efficient work triangle and more cabinets. And they gave the space a warm and inviting style with glossy gray flat-panel cabinets, a walnut butcher block island and a white-and-gray painted stencil backsplash feature that mimics the look of tile.
After: Vickers and Darr knocked the kitchen back to the studs and removed the walls between the dining room and living room. This helped increase the overall size of the kitchen by 7 square feet.
The remodeling team kept the sink in the same spot under the window but rejiggered the layout of other appliances. A range now sits in a peninsula beneath a stainless steel hood. A new French door refrigerator to the right helped establish an efficient work triangle between it, the range and the sink.
An island with two stools now connects the kitchen to the living room. Its walnut butcher block top adds warmth and extra work surface. Rattan pendants and faux white fur seat covers give a subtle bohemian touch. The island is integrated into a sheetrock-wrapped support post that replaced what was a load-bearing wall.
High-gloss gray flat-panel lower cabinets and some white uppers give the space a sleek look with a little European flair, a nod to the wife’s French roots.
Cabinets: Dove White and Greyloft in Maris style, KraftMaid
Shop for counter stools
The remodeling team kept the sink in the same spot under the window but rejiggered the layout of other appliances. A range now sits in a peninsula beneath a stainless steel hood. A new French door refrigerator to the right helped establish an efficient work triangle between it, the range and the sink.
An island with two stools now connects the kitchen to the living room. Its walnut butcher block top adds warmth and extra work surface. Rattan pendants and faux white fur seat covers give a subtle bohemian touch. The island is integrated into a sheetrock-wrapped support post that replaced what was a load-bearing wall.
High-gloss gray flat-panel lower cabinets and some white uppers give the space a sleek look with a little European flair, a nod to the wife’s French roots.
Cabinets: Dove White and Greyloft in Maris style, KraftMaid
Shop for counter stools
Marble-look quartz perimeter countertops form a waterfall edge on the peninsula. “The waterfall top was a good idea because I knew that was a high-traffic area, and we wanted to protect the cabinets,” Vickers says. “The homeowners also liked that look.”
Soft white walls (White Dove by Benjamin Moore) brighten the room. Golden-tone oak flooring anchors the space in warmth.
Soft white walls (White Dove by Benjamin Moore) brighten the room. Golden-tone oak flooring anchors the space in warmth.
Need a pro for your general contracting project?
Let Houzz find the best pros for you
Let Houzz find the best pros for you
What looks like white-and-gray backsplash tile is actually a painted design that the wife hand-stenciled. “She’s very artistic and wanted the flexibility of changing the backsplash,” Vickers says. “I loved this idea and foresight.”
Floating reclaimed-wood shelves offer display space for collectibles and decorative items.
The 10 Most Popular Kitchens So Far in 2022
Floating reclaimed-wood shelves offer display space for collectibles and decorative items.
The 10 Most Popular Kitchens So Far in 2022
Drawers to the left of the new 30-inch electric convection range store spices and cooking utensils. The corner cabinet to the right features a lazy Susan.
See the Latest Kitchen Appliance Trends for 2022
See the Latest Kitchen Appliance Trends for 2022
Before: In the previous kitchen, one wall held a hodgepodge of overflow storage components, including a pot rack and a rolling metal cart with microwave and dry goods. The garbage can also sat out in the open here.
Near the back door, a slim and tall white closet offered reach-in storage that wasn’t very useful.
Not sure where to start on your home project? Click here to learn the basics
Near the back door, a slim and tall white closet offered reach-in storage that wasn’t very useful.
Not sure where to start on your home project? Click here to learn the basics
After: Vickers redesigned the wall to include hardworking storage that surrounds the refrigerator. The microwave sits in a cubby high above the countertop, allowing clearance to the back door as well as extra height for tall kitchen appliances like a stand mixer.
Vickers ran the quartz counters up the back wall 3 inches to form a short backsplash. “A lot of people don’t realize you can do that,” she says. “It can save a lot of money too.”
Satin nickel hardware coordinates with the stainless steel appliances. Extra-wide drawers on the refrigerator wall and back of the island add tons of storage — no rolling carts needed.
Vickers ran the quartz counters up the back wall 3 inches to form a short backsplash. “A lot of people don’t realize you can do that,” she says. “It can save a lot of money too.”
Satin nickel hardware coordinates with the stainless steel appliances. Extra-wide drawers on the refrigerator wall and back of the island add tons of storage — no rolling carts needed.
Vickers replaced the reach-in closet near the back door with a wider pullout pantry cabinet. (See next photo.)
The pullout gives access to several shelves that hold dry goods and liquor bottles, helping to keep the countertops free of clutter.
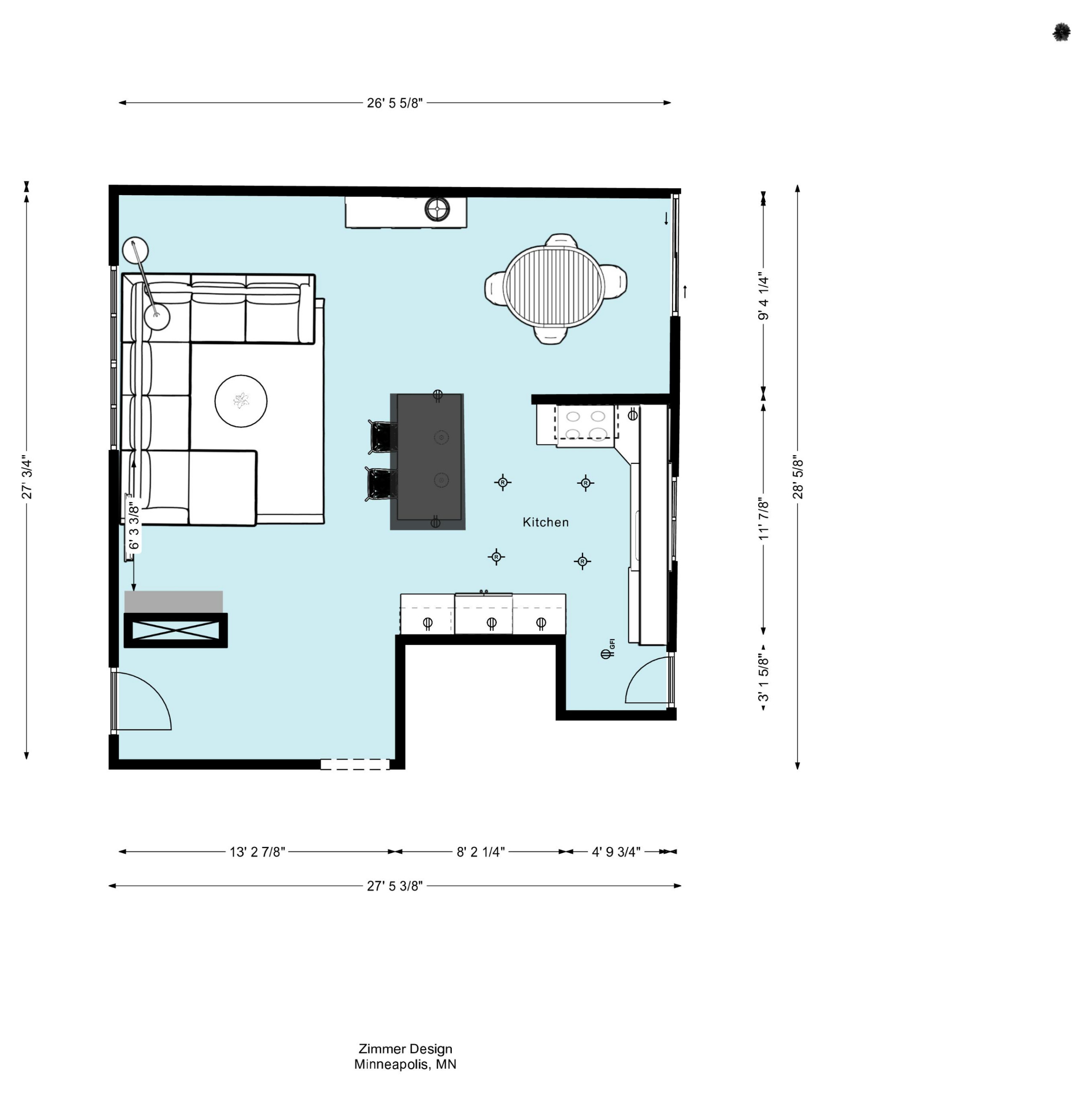
This floor plan shows the updated kitchen’s new open layout with the living room (left) and dining room (top right).
The new island (center) adds seating and work surface while the range on the peninsula (center right), the sink (right) and refrigerator (bottom center) form an efficient work triangle.
The openness helped bring light into the surrounding areas. “That transformed the whole house,” Vickers says.
More on Houzz
Read more kitchen stories
Browse kitchen photos
Hire a kitchen remodeler
Shop for kitchen products
The new island (center) adds seating and work surface while the range on the peninsula (center right), the sink (right) and refrigerator (bottom center) form an efficient work triangle.
The openness helped bring light into the surrounding areas. “That transformed the whole house,” Vickers says.
More on Houzz
Read more kitchen stories
Browse kitchen photos
Hire a kitchen remodeler
Shop for kitchen products














Kitchen at a Glance
Who lives here: A soon-to-be empty-nest couple
Location: Edina, Minnesota
Size: 185 square feet (17 square meters)
Designer: Kelly Vickers of Zimmer Design
Builder: Brent Darr of Darr Construction
Before: The couple liked little about their previous kitchen. Yellow walls and white laminate cabinets and countertops — not to mention the scalloped trim over the sink — gave the space a muted, off-putting look.
A wall to the left that held the white refrigerator and white range separated the kitchen from the dining room. The wall opposite the sink divided the kitchen from the living room. “The kitchen was closed off … so you were in a box in there,” Vickers says. “You couldn’t see anyone in the dining or living room, and there was no flow.”
Meanwhile, a lack of storage forced the homeowners to use rolling carts to hold a coffee maker, microwave and dry goods. (See “before” photo below.)
Find a kitchen designer