Kitchen of the Week: History Rebuilt After a Devastating Fire
Owners get a new-and-improved kitchen befitting their 1928 Mediterranean-style home in Minneapolis
From the looks of this Minneapolis kitchen, you might think that it has barely changed since the home was built in 1928. But after a recent fire did extensive damage to the historic Mediterranean-style house, a thoughtful reconstruction recaptured its original feeling while creating a bigger and more functional kitchen. “This home had beautiful historic craftsmanship that we were proud to honor,” says builder Doug Tanner of Dovetail Renovation, which carefully repaired and restored the home.
Before: This photo shows the devastation the fire wreaked on the house. “The plaster was moldy and falling off the walls, floors had buckled, and everything was covered in soot and blackened,” Tanner says. The team inspected every piece of framing, replacing what was damaged beyond repair and cleaning the rest with products that killed mold and eliminated odors.
9 Real Ways You Can Help After a House Fire
Find a local contractor
9 Real Ways You Can Help After a House Fire
Find a local contractor
A Fitting Hardware Detail
“These homeowners somehow managed to keep their senses of humor through a tough time. Early on in the rebuilding process, they found this cabinet hardware with flame-shaped backplates and knew they had to use it,” Tanner says. The style of the handmade wrought-iron hardware is a wonderful fit for the home.
Shop for iron hardware on Houzz
“These homeowners somehow managed to keep their senses of humor through a tough time. Early on in the rebuilding process, they found this cabinet hardware with flame-shaped backplates and knew they had to use it,” Tanner says. The style of the handmade wrought-iron hardware is a wonderful fit for the home.
Shop for iron hardware on Houzz
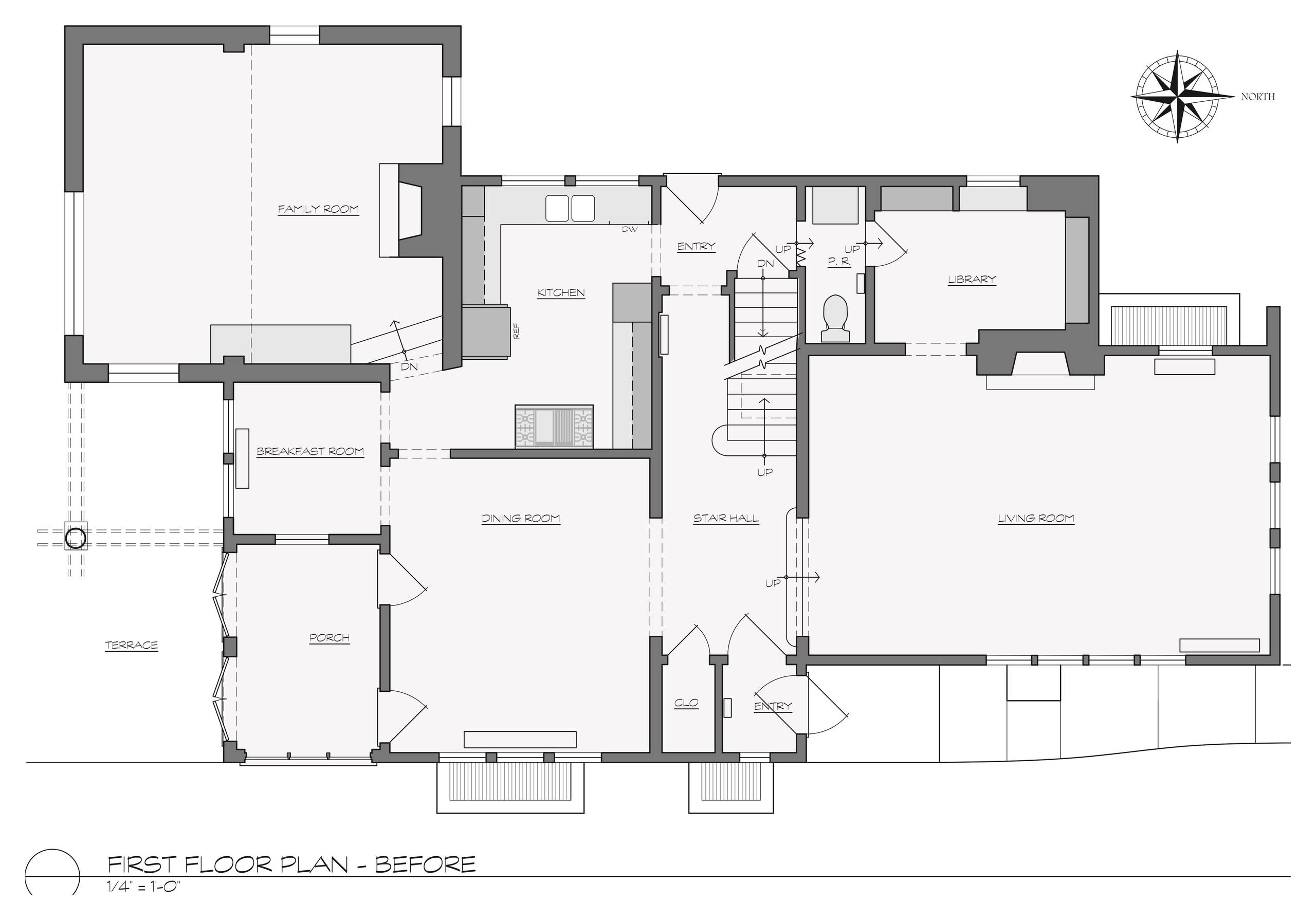
Before: In the 1920s, kitchens were purely utilitarian and not the busy family hubs they are today. The original kitchen, to the left of the stairs, was dark, cramped and dated. The family room, top left, was a converted garage. A small, awkward opening connected the two spaces.
“The family room was a step down from the kitchen. Walking into it felt like walking into a basement apartment,” Nelson says.
“The family room was a step down from the kitchen. Walking into it felt like walking into a basement apartment,” Nelson says.
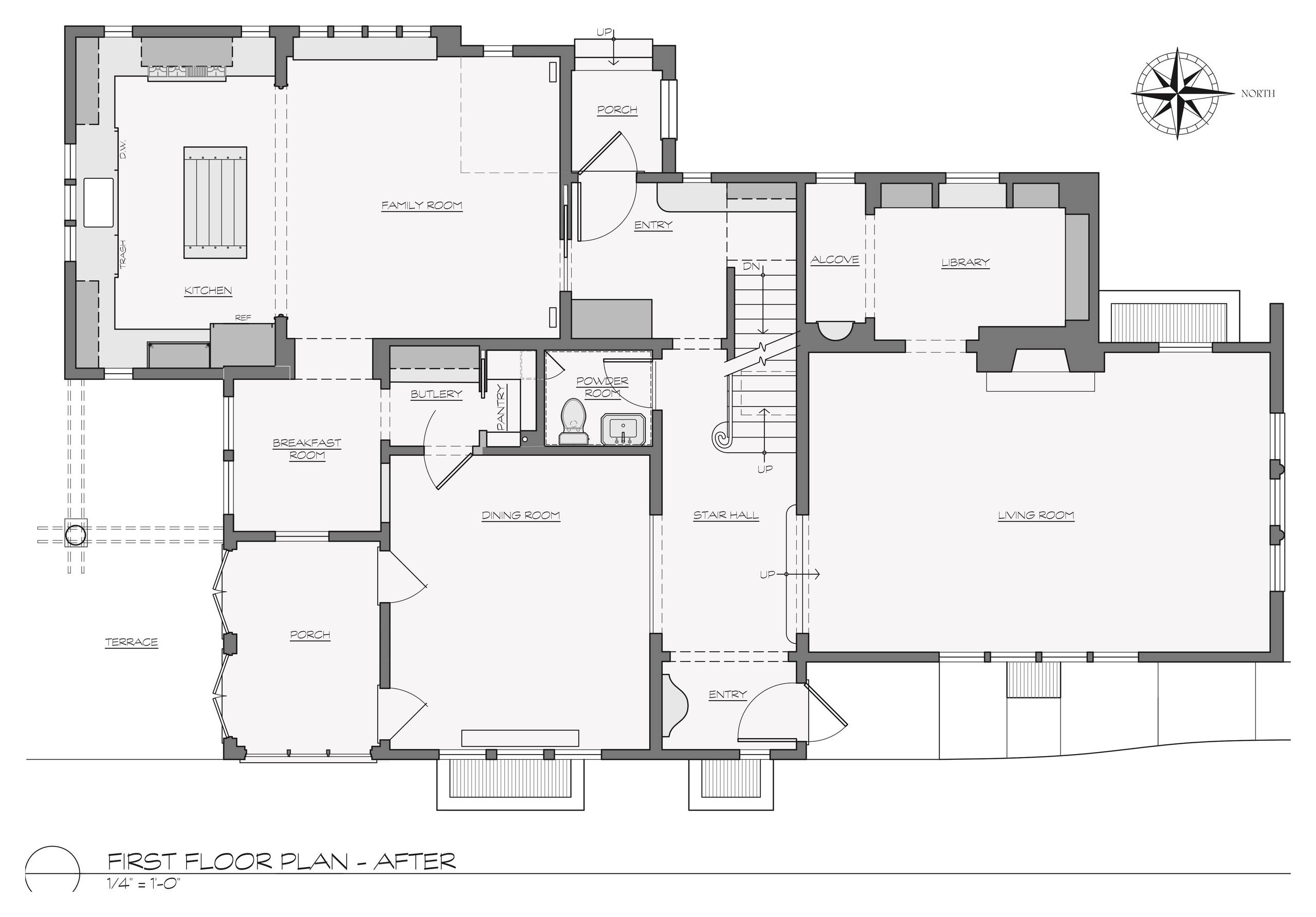
After: The area to the left of the double dashed line between the kitchen and the family room is the addition to the home’s original footprint. Besides altering the layout, the team raised the family room floor to the level of the other rooms on the first story.
The new layout provides stronger connections between the kitchen and the family room, the breakfast room, a new butler’s pantry and the yard. “The house has a more open feeling with better circulation and improved spacial relationships,” Nelson says. “By updating the house during reconstruction, we were able to make it better suit their daily lives.”
The new layout provides stronger connections between the kitchen and the family room, the breakfast room, a new butler’s pantry and the yard. “The house has a more open feeling with better circulation and improved spacial relationships,” Nelson says. “By updating the house during reconstruction, we were able to make it better suit their daily lives.”
Matching the 1928 Architecture
“Green was a favorite color of the homeowners, and this pale green is 1920s period color,” Nelson says. The countertops are White Macaubas quartzite. “This stone has very soft grays and green in it, and they tie this more modern element to the character of the house,” he says. The team used polished nickel on the faucet to match other original finishes in the home.
Three new mahogany casement windows fit in with the original architecture and provide a lovely view from the sink. Note that the backsplash extends all the way up to the windowsill, which is crafted of the same quartzite.
The windows’ modern energy efficiency combined with new insulation improved the comfort of the drafty former garage.
This photo also provides a peek at the ceiling beams, which mimic original beams in the living room. Tanner’s team hand-planed the fir beams using a draw knife for texture. Another notable detail is the line of mahogany that runs between the countertops and the lower cabinets. “This is a historic detail that adds a little trim around the room. It brings the mahogany from the millwork into the cabinetry,” Nelson says.
What’s the Difference Between Quartzite and Quartz Countertops?
“Green was a favorite color of the homeowners, and this pale green is 1920s period color,” Nelson says. The countertops are White Macaubas quartzite. “This stone has very soft grays and green in it, and they tie this more modern element to the character of the house,” he says. The team used polished nickel on the faucet to match other original finishes in the home.
Three new mahogany casement windows fit in with the original architecture and provide a lovely view from the sink. Note that the backsplash extends all the way up to the windowsill, which is crafted of the same quartzite.
The windows’ modern energy efficiency combined with new insulation improved the comfort of the drafty former garage.
This photo also provides a peek at the ceiling beams, which mimic original beams in the living room. Tanner’s team hand-planed the fir beams using a draw knife for texture. Another notable detail is the line of mahogany that runs between the countertops and the lower cabinets. “This is a historic detail that adds a little trim around the room. It brings the mahogany from the millwork into the cabinetry,” Nelson says.
What’s the Difference Between Quartzite and Quartz Countertops?
“There was original ironwork on the exterior of the house and throughout the house,” Nelson says. He brought the twisted-rope motif from the columns on the front of the house into the kitchen. The custom wrought-iron details, the accent tiles with a design from the period and the plaster on the vent hood surround add historic Mediterranean style to the range area. The simple square white tiles also tie in to the original home’s era and style.
Revival series tile: Mission Tile West
Browse Mediterranean tile in the Houzz Shop
Revival series tile: Mission Tile West
Browse Mediterranean tile in the Houzz Shop
More custom wrought iron forms the supports for mahogany shelves, giving the piece a freestanding, antique look. Live Oak Ironworks fabricated all the custom wrought-iron, which also includes the handle on the panel-front refrigerator and the towel bar on the island.
The island is another custom piece that suits the 1928 Mediterranean style. Outlets and USB ports are hidden along the edges of the island, and the wires run through the legs down into the floor.
The light fixture is by Lightworks, which specializes in historically correct antique reproductions. The Minneapolis studio modified it to include downlighting and stained the wood to match other finishes in the kitchen.
The oak flooring matches the original flooring in the home.
The island is another custom piece that suits the 1928 Mediterranean style. Outlets and USB ports are hidden along the edges of the island, and the wires run through the legs down into the floor.
The light fixture is by Lightworks, which specializes in historically correct antique reproductions. The Minneapolis studio modified it to include downlighting and stained the wood to match other finishes in the kitchen.
The oak flooring matches the original flooring in the home.
Secret Storage
This photo of the transition between the family room and the kitchen shows a clever architectural detail. The cased opening appears to be composed of two jambs supporting a beam overhead, but there’s more going on here. Take a close look at the mahogany column to the right of the kitchen cabinets.
This photo of the transition between the family room and the kitchen shows a clever architectural detail. The cased opening appears to be composed of two jambs supporting a beam overhead, but there’s more going on here. Take a close look at the mahogany column to the right of the kitchen cabinets.
The column conceals a pullout cabinet that keeps oils, spices and seasonings within handy reach of the range. A similar pullout across the way houses a broom and a step stool. All the cabinets were made locally by Frost Cabinets.
A butler’s pantry would have been common in 1928, but this house didn’t have one until the post-fire construction was complete. It creates a pleasing transition between the new kitchen and the dining room.
“Because of the fire, the house now has modern upgrades that take care of draftiness, a new HVAC system, and new wiring and plumbing,” Tanner says. “The house still feels old, but most of it is actually brand-new.”
Check out photos of the rest of the home
More on Houzz
Read about other Kitchens of the Week
Find a pro for your home project
Shop for home products
“Because of the fire, the house now has modern upgrades that take care of draftiness, a new HVAC system, and new wiring and plumbing,” Tanner says. “The house still feels old, but most of it is actually brand-new.”
Check out photos of the rest of the home
More on Houzz
Read about other Kitchens of the Week
Find a pro for your home project
Shop for home products
















Kitchen at a Glance
Who lives here: A couple
Location: Minneapolis
Size: 336 square feet (31 square meters); 24 by 14 feet
Architect: Mark Nelson of David Heide Design Studio
Builder: Doug Tanner of Dovetail Renovation
At first, the owners were anxious just to get their home back, but after tromping through the ashes with the architects from David Heide Studio, they expressed interest in making some improvements. Since nothing in the kitchen was salvageable, they got on board for moving it, adding a little square footage and improving the flow between the kitchen and other rooms. “Using the fire as an opportunity to do some things that they had wanted to do for a long time turned the process into an adventure and a more positive situation for them,” says project architect Mark Nelson.
Find a local architect on Houzz