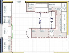
Have to post this. Bellajourney and I have been working....
13 years ago
Related Stories

SMALL HOMES16 Smart Ideas for Small Homes From People Who’ve Been There
Got less than 1,000 square feet to work with? These design-savvy homeowners have ideas for you
Full Story
LIFEHouzz Call: Who'll Post the First Snow Photo of 2013?
If the weather's been flaky in your neck of the woods, please show us — and share how you stay warm at home
Full Story
LIFEThe Polite House: On Dogs at House Parties and Working With Relatives
Emily Post’s great-great-granddaughter gives advice on having dogs at parties and handling a family member’s offer to help with projects
Full Story
MATERIALSPro Panel: ‘The Material I Love to Work With Most’
7 experts weigh in on their favorite materials for walls, flooring, siding and counters
Full Story
LIFEThe Polite House: Do I Have to Display Decor Given to Me as a Gift?
Etiquette columnist Lizzie Post tackles the challenge of accepting and displaying home decor gifts from frequent visitors
Full Story
HOME OFFICES10 Ways to Work Your Work Space
The dining room, kitchen or closet can all become your dedicated home office
Full Story
HOUZZ TOURSMy Houzz: Impulsiveness Works for Work-at-Home Texans
Handmade furniture, impulse buys and hand-me-downs mix beautifully in the home of two wedding photographers
Full Story
KITCHEN DESIGNOpening the Kitchen? Make the Most of That Support Post
Use a post to add architectural interest, create a focal point or just give your open kitchen some structure
Full Story
REMODELING GUIDESKnow Your House: Post and Beam Construction Basics
Learn about this simple, direct and elegant type of wood home construction that allows for generous personal expression
Full Story
DECORATING GUIDESPost-Christmas Conundrum: Toy Storage
Get Ideas for Storing the Kids' Playthings in Style
Full Story

Donaleen Kohn
berardmr
Related Professionals
Ocala Kitchen & Bathroom Designers · Schenectady Kitchen & Bathroom Designers · East Tulare County Bathroom Remodelers · Alpine Bathroom Remodelers · Eureka Bathroom Remodelers · Ogden Bathroom Remodelers · San Juan Capistrano Bathroom Remodelers · South Plainfield Bathroom Remodelers · Sun Valley Bathroom Remodelers · Middlesex Bathroom Remodelers · Eureka Cabinets & Cabinetry · North Massapequa Cabinets & Cabinetry · North Bay Shore Cabinets & Cabinetry · Oak Hills Design-Build Firms · Woodland Design-Build FirmsdeedlesOriginal Author
deedlesOriginal Author
User
User
deedlesOriginal Author
deedlesOriginal Author
User
deedlesOriginal Author
User
deedlesOriginal Author
lavender_lass
Bunny
taggie
taggie
williamsem
cathy725
bellsmom
Buehl
deedlesOriginal Author
angie_diy
poohpup
deedlesOriginal Author
deedlesOriginal Author
beekeeperswife
deedlesOriginal Author
westsider40
localeater
partyof7
bob_cville
beekeeperswife
deedlesOriginal Author
deedlesOriginal Author
deedlesOriginal Author
beekeeperswife
williamsem
a2gemini
deedlesOriginal Author
poohpup
deedlesOriginal Author
localeater
lyfia
bellajourney
poohpup
deedlesOriginal Author
localeater
deedlesOriginal Author