Absolute Final Plans and Elevations-And Build thread
Someone asked if I had plans so I'm posting this. These are my absolute final plans, I think. LOL.
The red is the final changes I made. I added in the pool in the back on the plat.
I'll use this thread to add to as I build the house. Right now all we have is footers and lots of cement block. Once we have some stem walls, I'll post a pic but I won't bore you all too much.
Some info about us:
Myself, DH and the dog. Occasional guests. We wanted a craftsman style house
DH is retired but very active locally in volunteer work. As an artist, I'll never completely retire (I hope.) We live in SW Florida 7 months of the year and this is a downtown residential area of small lots. The beauty is we can walk anywhere. We're a 1/4 mile walk to the bay, and down the street is a kayak launch. We're 2 blocks to stores and restaurants and less than 1/2 mile walk to downtown.
Houses range from those built in the 1920's on up to present day. We are only allowed to have 35% of the lot under roof. However that does allow us to build up to a maximum of 30' high. Under roof includes the garage, the front porch (a zoning requirement), and the lanai. Setbacks in our neighborhood are only 5'. Our lot is 9100 square feet.
I tried to be mindful of if one of us ever needs assistance. Hence the elevator. Additionally in the master bath, the closet around the toilet can easily be removed. The tub can be removed and the shower is walk in and if needed can be extended. While there are steps up into the house (to keep us above flood levels), it would be easy to add ramps if needed.
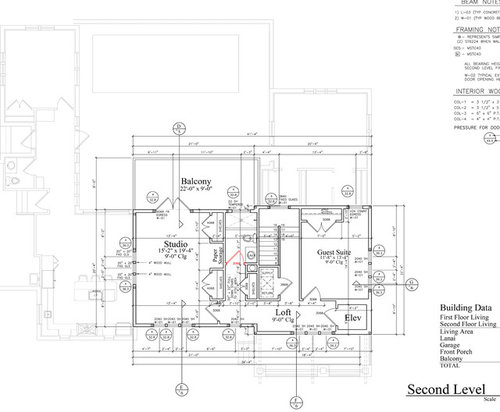
First is the plat with the house situated on it in yellow.





Pool:

Comments (972)
- 7 years ago
I have been following this thread from the get go, and have loved watching the evolution of your lovely home. The stained glass is really beautiful -- it's like jewelry in your kitchen! Can't wait to see the installation of the other windows.
I also get what imstillchloecat is saying about the hallway bench -- not that it looks cheap, but somehow it isn't right...yet? And I think that because everything else in the build seems to be "just so," this piece stood out to me? My thought was that it should have been built up to the hatband like all the other white pieces in the house - to give it more of a built in look. (I think that you've said that you are not really tall, so it would be for the look only). Alternatively, I would have opted for a different color or stain so that it reads like a piece of furniture. I also wish that it had been built around the baseboard so, again, it would look more built in.
cpartist thanked rmsaustin - 7 years agoWhite furniture is always a challenge, imho, and I think that is what seems "off" to some followers of the thread. On the other hand, given the utility of the piece having it match the trim as opposed to finishing like a piece of fine furniture makes sense to me. I have no doubt you will fully integrate into the cohesive look of your home. You've been very courageous to post progress pictures throughout your build and there are lots of us who appreciate it.cpartist thanked CSKI 13
Related Professionals
Panama City Beach Architects & Building Designers · Pacific Grove Design-Build Firms · Lake Worth Home Builders · North Richland Hills Home Builders · Placentia Home Builders · Troutdale Home Builders · Salem General Contractors · East Riverdale General Contractors · Henderson General Contractors · Orangevale General Contractors · Plano General Contractors · Summit General Contractors · Tabernacle General Contractors · Troutdale General Contractors · Wolf Trap General Contractorscpartist
Original Author7 years agolast modified: 7 years agoWell my bench is the least of my problems at this point. It seems our ductwork for our AC was not sized correctly and on top of that we were supposed to have a variable speed air handler and compressor. We got the variable speed air handler, but the compressor is meant for a single speed unit.
Unfortunately this will now be a case of he said/she said because we have a note we spoke to the guy at the builder and he told us the price was more than stated because it did include the compressor. However the change order we signed off on is the single speed unit. We thought it was the variable speed unit because no where on the Carrier site does it state whether the Performance series one we ordered was a single speed unit or variable speed unit.
Add to that, there are holes in our attic insulation.
This might mean tearing up the ceilings especially since we have no attic access like required in the wings of the house.
Let's just say I'm not a happy camper. And apparently we're not the only ones with ductwork problems in their AC. He's got several other customers having major issues. No wonder my wonderful super found another job.
- 7 years ago
What the actual bleeping bleep? Like, how could SO MUCH actually be wrong? And what on earth were all the inspectors doing before the walls were closed in?
My heart breaks for you. This is in no way typical of even cheap construction. This is why we are taking five years to do it ourselves, I just can’t trust anyone else to do a decent job when this is what care, oversight, and a significant sum of good money pays for. You and your husband deserved better :(cpartist thanked dsnine - 7 years agolast modified: 7 years ago
Inspectors look only for compliance with code. They don't do anything regarding quality. So long as things meet the bare minimum code then all's good from their standpoint.
But wait, there's more (RIP Billy Mays), most inspectors don't even find many things that don't meet code, including many quite obvious things. Like TSA, these are often not very knowledgable or motivated people — they are one day removed from flipping burgers. For HVAC ducting they may find things that are extremely obvious but they're likely not going to notice duct sizing errors unless greater than perhaps 50%.
cpartist thanked opaone - 7 years ago
This is an example of why a good HVAC person needs to be engaged as soon as possible in the design and building process. It's complicated and you need to get it right the first time.
Regarding the bench, it's proportions are wrong. It should have been taller and more substantial in size. It's free-standing and would have looked better as a built-in unit. The 8' door height adjacent to it makes it seem a little dinky in comparison. I bet it looks better from another angle.
cpartist thanked homechef59 - 7 years ago
Just to balance my statement above, there are some inspectors who actually know what they're doing and have enough common sense to know when or when not to apply what rules. These are unfortunately in the minority.
BTW, a great movie about this is 'Still Mine' about a guy building his own house that exceeded code by a considerable margin but the inspectors didn't understand what he was doing so didn't want to approve it.
cpartist thanked opaone - 7 years agolast modified: 7 years ago
Oh gosh, I am so sorry @cpartist. This would not be acceptable even in a production build but to know this is a custom with all those details specifically discussed must be even more frustrating for you! I can’t believe you don’t have attic access where it was specified so now they have to access via destructive means!?
It is one thing to be dealing with punch lists on finishing, but this is about the bones and systems of your home that make it a comfortable place to live. I really feel for you, I know this has been a long project - that you spent a lot of time planning - and I just can’t believe how many issues you have had. Any build has it’s unexpected surprises - production, custom, whether you spend $200,000 or $2,000,000, whether you are in Florida or Montana, but this is getting close to taking the cake (I think maybe @pink_peony had already run off with it though?)
cpartist thanked RaiKai - 7 years ago
@cpartist, my guess is that getting compensation from the builder will be tougher than blood from a turnip and, given how many people are having problems, he may not be around to deal with things likely to crop up in the near and far future. Have you documented what insurance and 3rd party homeowners warranties he's covered by?
cpartist thanked opaone cpartist
Original Author7 years agoThank you everyone. Opaone is correct that the city inspectors just basically look for the obvious. We are having a phone convo with the guys who looked over our whole system and did all the testing. We did the testing because we knew this builder had problems with HVAC with some of his other clients and we know because one of the return vents into the air handler was too small, we had a problem right there.
This is an example of why a good HVAC person needs to be engaged as soon as possible in the design and building process. It's complicated and you need to get it right the first time.
And before the plans were filed, I kept asking about bringing in the HVAC people and I was told not to worry. Over and over again I asked and was told not to worry. Hah.
For those starting their builds, this is something to be done while plans are still on paper. I trusted this SOB builder at the time. Boy am I sorry I did.
Regarding the bench, it's proportions are wrong. It should have been taller and more substantial in size. It's free-standing and would have looked better as a built-in unit. The 8' door height adjacent to it makes it seem a little dinky in comparison. I bet it looks better from another angle.
I will take another picture at some point soon so you can all see it doesn't look quite as wrong as it does from that lower angle. LOL. Trust me, in person it looks fine.
BTW, a great movie about this is 'Still Mine' about a guy building his own house that exceeded code by a considerable margin but the inspectors didn't understand what he was doing so didn't want to approve it.
I agree. This was a fabulous movie and well worth watching. And even better, it's a true story.
(I think maybe @pink_peony had already run off with it though?)
Her thread might be longer, but trust me, I think I've run off with it. Believe it or not, there were lots of things I never even mentioned on here.
@cpartist, my guess is that getting compensation from the builder will be tougher than blood from a turnip and, given how many people are having problems, he may not be around to deal with things likely to crop up in the near and far future. Have you documented what insurance and 3rd party homeowners warranties he's covered by?
We only have our TCO and because of that haven't given him final payment (which is substantial). ;)
Will we come out even or even ahead considering we also lost a HUGE tax break because we weren't in by December? No, but hopefully we won't be too far behind.
cpartist
Original Author7 years agoRai Kai, send me a message. Got something to tell you, you'll appreciate
- 7 years ago
I can't believe your HVAC is jacked up. What HVAC company would even install something that isn't compatible or right?? I'm so sorry you're having to deal with all of this.
cpartist thanked gthigpen - 7 years ago
Does your build contract allow for lawsuits or does it have an arbitration clause. Just wondering because I used to be a new build arbitration administrator for (at that time) the largest arbitration firm in the US.
cpartist thanked tcufrog - 7 years ago
Oh. My. Gosh.
Your problems with this house just seem like they're neverending! :( I'm SO sorry you're dealing with this. :(cpartist thanked User cpartist
Original Author7 years agoThank you again everyone.
Yes it allows for arbitration but it may not wind up in arbitration for reasons I prefer not to discuss at this point. I will say we do have an excellent construction lawyer.
- 7 years ago
I’m glad you have a good lawyer, and YES keep all details private in the process, since the Internet is public and all that Jazz.
cpartist thanked dsnine - 7 years agolast modified: 7 years ago
One thing I learned working at an arbitration firm is that if you go to arbitration it is crucial to hire a lawyer who is experienced in handling arbitration cases with that arbitration firm. The rules vary from arbitration firm to firm and they are in many ways different from a regular court. A lot of large construction firms that are called into arbitration a lot already have a lawyer experienced at this work. Not hiring one who has successfully fought an arbitration case at that firm will really put you at a disadvantage.
Hopefully, you will not need this advice but thought I'd offer it just in case.
I don't feel comfortable giving more info in a public forum but you'd appreciate more info please message me.
cpartist thanked tcufrog cpartist
Original Author7 years agoRai Kai, I messaged you back.
tcufrog, message me so I can message you back. :)
cpartist
Original Author7 years agoOh and one other thing? I have my medicine cabinets recessed into the wall. It's an outside wall on a west wall in Florida. Yep, you guessed it, when they recessed the cavity, they never insulated the wall, so now we can't even put medications in our medicine cabinet because by late day, the temperature in the medicine cabinet is anywhere between 80-85 degrees!
- 7 years ago
@cpartist - gah, I did not get yours. I checked my profile and it is set for all users - can you resend? Sorry!
cpartist thanked RaiKai - 7 years ago
A medicine cabinet where you can’t even store medicine. Hmmm. I’d say it would be a good place to store tiny alcohol bottles at this point but those aren’t so good heated up to 85 degrees either!
cpartist thanked RaiKai cpartist
Original Author7 years agoRai Kai, I resent. Let me know if you got it.
Yes unfortunately even tiny alcohol bottles won't work in the cabinet. Sigh.
- 7 years ago
my brain is officially torn at this point..such a high level of detail, consideration, customization build..every detail is thought out, is singing..how this discrepancy occurs, with all the issues, is beyond me. It's huge discrepancy. I understand some crafstmen and workers know what they do very well, some don't, some are in the middle..but here's something happenning so desynchronized, that makes one loose his head.
I do hope they fix all of their..mistakes.
On a positive note- when I saw that stained glass I exclaimed out loud a word in Russian that means deep admiration, amazement, and other signs of being in a very positive shock, that I can't really translate:)
cpartist thanked aprilneverends - 7 years ago
Oh, my, now that is something I don't think even you would ever have thought of! And of course you can't keep makeup in there either. Oh, my.
cpartist thanked bpath cpartist
Original Author7 years agoLuckily I do keep my makeup in the drawer, but I was keeping my meds in the medicine cabinet. What's the point of a medicine cabinet if you can't use it?
And in the this is getting ridiculous category:
About a month ago, I ordered house numbers in brushed stainless for the house thinking I'd put them up on the darkest green part of the house. After getting them delivered I realized that if I put them up on the gable in front of the porch, they'd probably be too high to see comfortably and after much discussion, we came to the conclusion that right above the front door would be best.
However the brushed nickel numbers wouldn't be seen above the doors with the color of my house, so I called Signature Hardware, returned the brushed nickel and instead ordered the same exact house numbers in the same 6" high size in bronze.
Last week the numbers arrived and instead of the 0, 7, 4 and 1, I got a 0, 7, 3 and 1. So I called them up and explained that no, I never ordered a 3 as my house doesn't have a number 3 in it and I had ordered a 4 like the previous order. They agreed to send me out the 4 at no charge immediately.
Today the 4 arrived. Only instead of sending me the 6" size like all the other numbers, they sent the 4" size. So now I have a 6" sized number 3 that is useless and a 4" sized number 4 that is useless. Hopefully the third time with them sending the number is the charm.
- 7 years ago
I am so sorry, to hear this CP. such incompetency, amazing that these so called Pros, (builders, HvAc etc. are still in business) Your saga is even more disconcerting given your attention to detail, your meticulousness and your ongoing communication attempts with all those involved with this build. It appears that all due diligence was done to ensure a successful building experience and, hence, avoid the ongoing issues this one has turned out to have.
cpartist thanked Love stone homes cpartist
Original Author7 years agoA shout out to Signature Hardware. I spoke to them yesterday afternoon and let them know I wasn't happy because they sent the wrong sized number and this was their second mistake. They said overnight delivery doesn't normally deliver on Saturdays. I let them know my handyman was coming today and they said they'd see what they can do.
About 1 hour ago, my correct number in the correct size and color arrived. I will write them a positive review because everything I've bought from them (no faucets though) has been great.
Your saga is even more disconcerting given your attention to detail, your meticulousness and your ongoing communication attempts with all those involved with this build. It appears that all due diligence was done to ensure a successful building experience and, hence, avoid the ongoing issues this one has turned out to have.
Thank you. Unfortunately even though I tried to educate myself on most things, I knew I wasn't the expert and was relying on those who claim to be expert in their fields. And to make sure we even had a building inspector come out and inspect. Sigh.
- 7 years ago
I have just had a similar experience that is yet another example of no matter how much one does ones homework and how careful one is, vendors can still manage to screw things up.
I decided that I wanted to put a door on a small bookcase section in my breakfast room - it's right between the large built-in corner cabinet and the wide opening with pocket doors. If I were 20 years younger, I'd put glass doors on all the bookcases, send the books to a local university library (I have a LOT of books in my house!), and use all of this space for a wonderful butler's pantry for all my many, many dishes. Alas, I am not 20 years younger, and the next owner of this house will tear out the entire wall, so it's not happening.
But this small, narrow bookcase can give me some valuable, added storage space - less "stacking" of dishes in the corner unit.
I had my kitchen company out a few weeks ago as I'm considering reclaiming the dog cubby area. While the head installation buy was here, I asked him to take a look at this bookcase, and if they could make a door for it. No, they no longer did this, but he could tell me who they use for custom things like this. So, he gave me the name of a company (that is to hell and gone!) and I also asked him to do the measurement for the door while he was here. He did both an opening measurement and the door measurement, and then removed one of the doors on the corner unit and put it in my car, so they could see what they would be copying.
I called the company to get a ballpark price for this - was told about $60. I asked if there was a particular day of the week or time of day that was best for me to come - this is a company used primarily by contractors so I didn't want to interfere with their bread & butter customers. It was suggested that around 11 AM was a good time and any day was fine.
So, off I went on that Friday morning. I got there and the guy at the order desk said that in the summer, none of the salesmen worked on Fri - like to go out on their boats. Okay - that's "interesting"! He had someone bring my door in and told me they could NOT copy it - it would be different. So, I asked the price if I did 3 new doors - 2 for the corner cabinet and one for the new one abutting it. They would be $175 EACH? What happened to $60? He said the salesman was wrong about the price. Not doing 3 new doors. So, I asked how close they could come to my simple painted Shaker door. He brought in a sample and it was not exact but close enough that no one but me would ever notice the difference. So, I gave him the measurements and ordered (and paid for) the new door - he decided that $140 would be the price for the smaller one.
I went out on Wed and pickup up the door - it was nicely boxed so I did not open it in order to protect it. My handyman came Thurs AM to hand it for me - I'll worry about painting it later - having terrible problems getting my painter to actually show up - don't have time to mess with that right now. Handyman unboxed the door, brought it into the breakfast room and we discovered that the side rails were not the same width? Huh? Who makes a Shaker door like that? They saw my door! I saw their sample! Geeze. Then we discovered that it was not the right size - not big enough to be a partial overlap (which it was supposed to be) but too big for a full inset. Of course, I threw out the paper with the measurements the guy did for me - didn't think I'd be needing that again!!! Wrong!
At that point, I knew it would be a "he said, she said" situation and I don't have the time or energy to get into that right now. So I asked the handyman if there was a way to make it "just work", even if not as planned. Yes, he is cutting a bit off the wider side rail so it can be a full-inset, and a bit off the top. Now, we needed full-inset hinges and handyman said they are very hard to find locally and that he did not have time to run all over town looking for them. I don't either - not the strength!
Then the blessing of Amazon came to this tired old mind. Grabbed my iPad, went on Amazon, found the correct hinges and they are being delivered today and handyman will install the door on Mon afternoon.
So, just what could I have done differently? I assume that my kitchen cabinet company head estimator/installer know how to properly measure for a door. But I also assumed that a custom millwork fabricator would know how to properly write up an order and make one that looked like the one I hauled out there. I'll never know whose mistake it was but I don't know what more I could have done unless I'd made the danged thing myself, which I have neither the tools or ability to do.
cpartist and I share many traits. We're both VERY detail oriented. We both communicate well. We both know what we want and often want something a bit out of the ordinary. And we choose our workmen/fabricators carefully. Yet we've both been stung - cpartist FAR more badly than I have - unbelievably badly. I truly don't know what more either of us could have done to insure things being done properly, unless it was to get a chair and sit right beside the workman and have a tape to measure every single thing they do. A bit unrealistic, no?
Also, VERY frustrating... Hopefully, this door will work and will look fine - it will be fine enough for me for a few more years. I have "declared victory and retreated"...
cpartist thanked Anglophilia - 7 years ago
To tag on to Anglophilia's story: We hire professionals for their skill and expertise. That is why professionals are called professionals and they make more money and have more prestige than than the guy flipping burgers. Supposedly they have been trained and have passed exams and are professionally licensed. We count on them to do the job correctly and in a professional manner, just like you count on the airline pilot to get you safely on the ground or the doctor to perform a successful surgery. It's part of being a PROFESSIONAL! We should not have to research and educate ourselves as to their business. That is what we are paying them for.
After building my house, I am beyond flabbergasted at the lack of professionalism with contractors and sub contractors compared to 20 years ago when I was in the business. Unfortunately, the average lay person has no clue as to how to build anything and are at the contractor's mercy and contractors know it. Even in my case, when I DO have a clue, I was taken advantage of and things got past me. Daily, I find little crap that is wrong due to laziness or just an "I don't give a damn" attitude. It makes my blood boil and I have lost all respect for the contractors in my town. I've been waiting six weeks for 3 different subs to come and fix things and of course they have blocked my calls or won't respond. To those who had a wonderful easy build, you do not know how lucky your are.
Just know cpartist, you are not alone and a lot of us know your frustration. I sincerely hope that your contractor will get everything fixed to your satisfaction. Your house is an absolute showpiece, it is just a shame so many things are messed up. Your contractor should be ashamed of himself.
cpartist thanked Suru cpartist
Original Author7 years agoI truly don't know what more either of us could have done to insure things being done properly, unless it was to get a chair and sit right beside the workman and have a tape to measure every single thing they do. A bit unrealistic, no?
Actually the subs hated me because I was there watching over them. I figured if the supervisor couldn't be there (since he was overworked with 8 houses - all fully custom) then someone had to make sure they weren't screwing up. Yet they still did.
Hopefully, this door will work and will look fine - it will be fine enough for me for a few more years. I have "declared victory and retreated"...
I bet it will look great.
Today the stained glass windows were installed in DH's study. Here's a picture of the study before windows

and the windows themselves installed.

I can't get a good pic of the study with the windows because if one is lit correctly, the other isn't.
Even the colors in the photo of the stained glass is off. The leaves in the "trees" are dark green.
- 7 years ago
Nooooo! I haven't 'looked in on you' for many months. When I saw this thread was still 'alive', I groaned. This IS a bad dream.
I'm going to hold on to the thought someone expressed here about the Ginko leaves. May you and Mr. Cpartist live to tell the tale -- from the comfort of your lovely home.
cpartist thanked chisue cpartist
Original Author7 years agoThank you Suru. For some reason your post just showed up in my email which is why I missed it before.
- 7 years ago
cpartist - We haven't gotten an update from you in couple of weeks. I hope that all of your house issues are being resolved!
cpartist
Original Author7 years agoThank you Anglo. I like him.
Pam thanks for asking. Nothing new to report right now but no resolution yet
cpartist
Original Author7 years agoBedroom stained glass windows are in.
First photo is the overall look and feel
Second photo is of one window showing actual colors.

- cpartist thanked beckysharp Reinstate SW Unconditionally
- 7 years agolast modified: 7 years ago
Despite the problems it is looking great.
For photos, download Pro HDR X (from eyeApps LLC). It will take multiple exposures and then combine them so that windows, exterior and interior are correctly exposed. Most of the time it does a great job in auto mode but also offers excellent manual modes if needed. There are a bunch of other HDR apps as well but this is the best we've found.
For color get a grey card (often called 18% grey) from B&H, Amazon or a camera store. Include it somewhere in your shot and then crop it out or take one shot with it and then use the color correction values in your editor to apply to the shot without the card or use it to set the white balance in your camera or app and then take your shot.
cpartist thanked opaone cpartist
Original Author7 years agoThank you both.
Opaone, the iPhone has HDR on it and that is what I used. It's still difficult to get the color right with the stained glass. :)
- 7 years ago
The HDR in the camera app on the iphone is actually quite poor. Pro HDR X and similar are a bit better. Similarly, apps like Camera+ are also much better general camera apps than the Apple app.
For color, your camera is trying to guess the color temp and also trying to balance the temp of sunlight and whatever artificial light you've got in the room. Tough job. That's why a grey card is critical.
cpartist thanked opaone - 6 years agoHello cpartist, Your home looks beautiful & I’m sorry that there were so many problems with the building process. I own a “villa” (sounds impressive, doesn’t it?) in Sarasota that has been used as a rental for the last 7 years. My husband and I have finally become snowbirds and want to do a major renovation to the house. We are now in the process of replacing all the doors & windows with hurricane rated products, so that part is almost finished. The rest will involve removing soffits & popcorn ceilings, removing some walls & moving others none of which are load bearing, & gutting the 80s kitchen & bathrooms. Not quite a new build but changing almost the entire interior except the hardwood floors. Since we are new to the area and none of the neighbors have been able to recommend good contractors to consider we’re semi stuck. After reading your saga of issues, I really don’t want to fly blind. We have had some issues with workers who didn’t have a work ethic and others who just didn’t do work to our expectations. Since you have been put thru the wringer, do you have anyone that you would recommend & names of those to stay away from? We need someone who can impress my perfectionist husband and who employs workers that will do the same. Thank you for any info you choose to share with me.cpartist thanked mileaday None
cpartist
Original Author6 years agoYes i do. Message me and i will give you my recommendations. We had a fabulous contractor who did our condo back in 2010 and will be building our bridge over our swale now. We are also very happy with our cabinet person
- 6 years ago
cp- Glad to see that you are finally on the 'good side' of your build. What an amazing saga! The pictures are stunning, as we all knew they would be. I think a house of that quality and craftsmanship is simply beyond the grasp of most contractors. I hope you're enjoying it now!











Mark Bischak, Architect